Vous pourriez emménager dans votre nouvelle maison le 11/04/2026

by HVS
Nous préparons votre maison dans le configurateur de HVS CONSTRUCTION
Nous préparons votre maison...
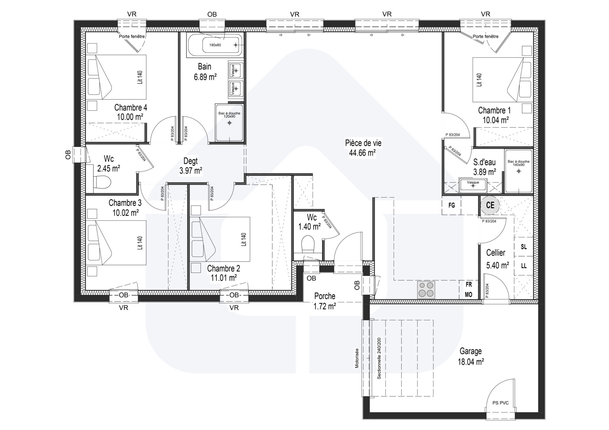
Maison 4 chambres • 110 m²
Prix estimatif 157490
Gros oeuvre
Inclus dans le prix
Terrassement
Le lot terrassement est primordiale au bon démarrage d'un chantier !
Il comprend :
- Implantation de la construction sur le terrain
- Décapage de la terre végétale sous l'emprise de la construction
- Ouverture des fouilles en rigoles pour la réalisation des fondations
- Evacuation des terres & remblais en déchetterie
- Accès de chantier en concassé de calcaire
Il comprend :
- Implantation de la construction sur le terrain
- Décapage de la terre végétale sous l'emprise de la construction
- Ouverture des fouilles en rigoles pour la réalisation des fondations
- Evacuation des terres & remblais en déchetterie
- Accès de chantier en concassé de calcaire
Terrassement
Préparation du terrain & évacuation des terres inclus dans le prix
Maconnerie
Murs périphériques réalisés en PARPAING de 20 cm d'épaisseur, maçonnés au mortier
Parpaing
Le plus économique, R = 0,23 m².K/W inclus dans le prix
Dalle réalisée en béton armé d'épaisseur 12 cm inclus armature treillis soudé, coulée sur remblai compacté, avec interposition d'un
film polyane pour éviter les remontées capillaires
film polyane pour éviter les remontées capillaires
Dalle béton TP
Le plus courant & le plus économique inclus dans le prix
Charpente
Fermettes industrielles espacées de 60 cm d'axe en axe avec étrésillons et contreventements
Charpente
Fermettes industrielles inclus dans le prix
Couverture
Tuiles en terre cuite modèle & coloris au choix suivant prescription du permis de construire
Couverture
Un matériau intemporel pour la toiture inclus dans le prix
Façades
Enduit monocouche finition GRATTE, couleur suivant prescriptions permis de construire
Façade
Enduit gratté fin inclus dans le prix
Options
Personnaliser votre projet
Murs périphériques réalisés en brique R1,00 à joint mince de 20 cm d'épaisseur
Brique
Le plus performant, R = 1,10 m².K/W +1790€
Dalle RDC réalisée en béton armé inclus armature treillis soudé, coulée sur plancher poutrelles et entrevous type ECOVS 13+4 ou équivalent (vide sanitaire non isolé) + grille de ventilation PVC Blanche
Dalle béton VS
Ventilation naturelle efficace, protège des remontées capillaires +7690€
Raccordements aux réseaux public (EDF - FIBRE - EU - EAU) de la limite de voirie à la maison
Forfait de 6 ml maximum habituellement sous les places de parking
Forfait de 6 ml maximum habituellement sous les places de parking
VRD
Eau, EDF, Fibre & TAE +3790€
L'écran est essentiel pour se prémunir des risques d'infiltrations d'eau, même en cas de casse ou de déplacement des tuiles
Ecran sous toiture
Ecran sous toiture HPV et contre liteaunage +1990€
Second oeuvre
Inclus dans le prix
Performance énergetique
Nos isolants HPE inclus dans le prix :
- ACTIS HYBRIS aux murs de 125 mm en épaisseur pour un R de 4.65 m² K/W
- TMS au sol de 100 mm en épaisseur pour un R de 4,25 m² K/W
- Laine de verre soufflée au plafond de 45 cm en épaisseur pour un R de 10 m² K/W
- ACTIS HYBRIS aux murs de 125 mm en épaisseur pour un R de 4.65 m² K/W
- TMS au sol de 100 mm en épaisseur pour un R de 4,25 m² K/W
- Laine de verre soufflée au plafond de 45 cm en épaisseur pour un R de 10 m² K/W
Isolants RE 2020
Des isolants hautes performances inclus dans le prix
Ouvertures
Chez HVS vous avez accès à tous le catalgue Bel'm sur les gammes Bois, Acier & Aluminium*
* Plus ou moins value suivant le modèle choisi
* Plus ou moins value suivant le modèle choisi
Porte d’entrée
Porte d'entrée Design en Acier RAL au choix inclus dans le prix
Nous proposons toute la gamme de portes basculantes et sectionnelles des marques Hörmann et Tubauto.
Porte de garage
Porte de garage sectionnelle motorisée inclus dans le prix
Volets roulants motorisés Aluminium de marque Eveno connectée (Somfy, Delta Dore ou Zigbee)
Volets roulants
Volets Roulants robuste, esthétique & connecté inclus dans le prix
Nous proposons toutes la gamme de chez Millet :
- 100% PVC = Gamme Cybel
- Mixte ALU/PVC = Gamme Tandem
- 100 % ALU = Gamme M3D
- Mixte Alu/Acier dormant invisible = Gamme Simple
- 100% PVC = Gamme Cybel
- Mixte ALU/PVC = Gamme Tandem
- 100 % ALU = Gamme M3D
- Mixte Alu/Acier dormant invisible = Gamme Simple
Menuiseries
Menuiseries Hautes Performances de marque Millet inclus dans le prix
Finitions
Choisissez votre niveau de finition de revêtements sols & murs
Nous proposons plus de 500 références repartis sur 3 gammes de carrelage.
Pour les projets les plus haut de gamme nous pouvons également sortir de la gamme afin de proposer des produits sur mesure.
Pour les projets les plus haut de gamme nous pouvons également sortir de la gamme afin de proposer des produits sur mesure.
Carrelage
Laisser libre court à votre imagination +8090€
Nous proposons plus de 500 références repartis sur 3 gammes de carrelage.
Pour les projets les plus haut de gamme nous pouvons également sortir de la gamme afin de proposer des produits sur mesure.
Pour les projets les plus haut de gamme nous pouvons également sortir de la gamme afin de proposer des produits sur mesure.
Faiences
Pour tous les goûts et tous les styles ! +3290€
Vous avez accès à l'ensemble de la gamme Quick Step ou Egger, avec des centaines de références.
Stratifiés
Un large choix pour tous les goûts ! +3790€
Application de peinture mate en 2 couches, blanc acrylique, sur toute la partie habitable. Vous avez la possibilité d'inclure des murs de la couleur de votre choix.
Peinture
Peinture mat Blanche +7990€
Equipements
Pour une maison unique !
Pour une maison sans calcaire avec une eau douce comme de la soie !
Adoucisseur d’eau
Adoucisseur SOFTEO + 18L +1390€
Nous proposons une large gamme de sanitaires pour tous les budgets. Personnalisez votre salle de bains sans limite, en choisissant parmi nos robinetteries, baignoires, meubles, etc.
Sanitaires
Meubles et robinetterie haut de gamme +5090€
Forfait de 30 m² comprenant la fourniture et la pose d'une terrasse en bois de pin ou de carrelage sur plots. Possibilité de choisir en option parmi toutes les essences de bois ou tous les formats de carreaux parmi des dizaines de références chez nos fournisseurs
Terrasse
Terrasse en bois ou carrelage sur plots +5490€
Piscine maçonnée toute équipée avec couleur de liner au choix. Toutes les dimensions et formes possibles en option.
Piscine
Piscine de 6m x 3m avec équipement +24990€
Votre projet
Estimation budgétaire
287 586
0
Planning
3 à 4 mois
8 à 10 mois
Visualisez votre maison
Recevez votre projet personnalisé
Terrain de m² à Retirer le terrain sélectionné































SAINT-GEORGES-DU-BOIS
AIGREFEUILLE D'AUNIS
ANAIS
Andilly
ANGLIERS
ARDILLERES
BOUHET
BOURGNEUF
CHAGNOLET
CHARRON
CHATELAILLON PLAGE
COURCON
FORGES
LA JARNE
LAGORD
LE THOU
LOIRE LES MARAIS
Mauzé sur le Mignon
PUYRAVAULT
SAINT JEAN DE LIVERSAY
Saint Laurent de la Prée
SAINT ROGATIEN
Saint-Médard
Sainte Marie de Ré
Sainte Soulle
SALLES SUR MER
SURGERES
VERINES
VILLEDOUX
VOUHE
Yves